技术特性
- 0.5 um pHEMT technology
- > 25 dB nominal gain
- > 36 dBm nominal Psat
- 44 dBm nominal IP3 @ 14 GHz
- Bias 7 V @ 1.3 A Idq, 2.1 A under RF drive
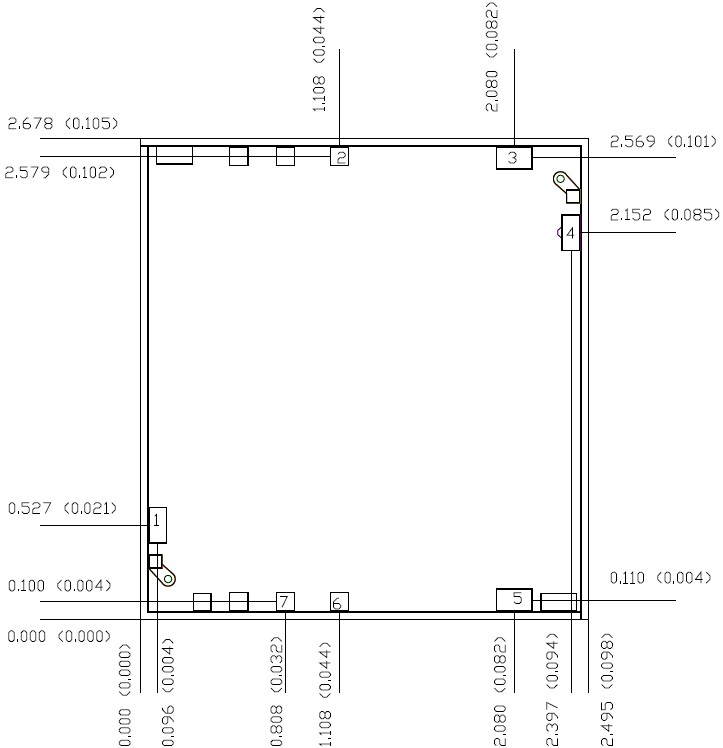
- Chip dimensions: 2.5 x 2.7 x 0.1 mm
应用领域 APPLICATION
- Ku Band VSAT Transmitters
订购信息 Ordering Information
|
技术指标
| 频率(GHz) |
功率(dBm) |
增益(dB) |
NF/PAE |
+V |
IQ(mA) |
| 13-15 |
36 |
25 |
30% |
7 |
1300 |
机械图样Mechanical Drawing
 |