技术特性
- 34 dBm midband Pout
- 25 dB nominal Gain
- 7 dB typical input return loss
- 12 dB typical output return loss
- Built-in directional power detector with reference
- 0.25um pHEMT technology
- Bias conditions: 7 V, 640 mA
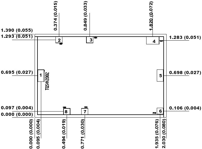
- Chip dimensions: 2.03 x 1.39 x 0.10 mm (0.080 x 0.055 x 0.004 inches)
订购信息 Ordering Information
应用领域 APPLICATION
- Point-to-Point Radio
- VSAT
|
技术指标
| 频率(GHz) |
功率(dBm) |
增益(dB) |
NF/PAE |
+V |
IQ(mA) |
| 13 -17 |
34 |
25 |
- |
7 |
640 |
机械图样Mechanical Drawing
 |