TGA4046 2W Q 波段高功率放大器

The TriQuint TGA4046 is a compact high power amplifier MMIC for Q band applications. The part is designed using TriQuint's 0.15um gate power pHEMT process. The TGA4046 nominally provides 33 dBm of saturated output power and 32dBm output power at 1 dB gain compression from 41 to 46 GHz. The MMIC also provides 17 dB gain and 16 dB return loss. The part is ideally suited for markets such as satellite communications (both commercial and military). The TGA4046 is 100% DC and RF tested on-wafer to ensure performance compliance. The part is lead-free and RoHS compliant

技术特性
  • Typical frequency range: 41 to 46 GHz
  • Typical 33 dBm Psat, 32 dBm P1dB
  • 17 dB nominal gain
  • 16 dB nominal return loss
  • Bias: 6 V, 2 A
  • 0.15 um 3MI pHEMT technology
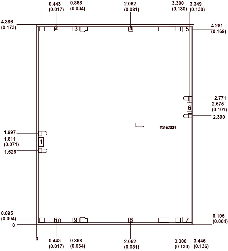
  • Chip dimensions: 3.45 x 4.39 x 0.10 mm (0.136 x 0.173 x 0.004 in)
应用领域 APPLICATION
  • Satellite Communications (Satcom)
订购信息 Ordering Information
  • TGA4046
技术指标
频率(GHz) 功率(dBm) 增益(dB) NF/PAE +V IQ(mA)
41-46 33 16 - 6 2000
机械图样Mechanical Drawing
TGA4046 机械图样
应用技术支持与电子电路设计开发资源下载 版本信息 大小
TGA4046:S 参数    
TGA4046 数据资料DataSheet下载:PDF Rev.V2 2 页