TGA4916 7 W Ka-波段HPA

The TriQuint TGA4916 is a compact 7 Watt high power amplifier for Ka band applications. The part is designed using TriQuint's proven standard 0.15 um gate power pHEMT production process. The TGA4916 provides a nominal 38.5 dBm of output power at an input power level of 19 dBm with a small signal gain of 21 dB. The part is ideally suited for low cost emerging markets such as base station transmitters for satellite ground terminals and point-to-point radio.

技术特性
  • Frequency range: 29 to 31 GHz
  • 38.5 dBm nominal Psat, 38 dBm nominal P1dB
  • Gain: 21 dB
  • Return losses: -10 dB
  • Bias: Vd = 6 V, Idq = 3.2 A, Vg = -0.7 V typical, Id under RF drive = 6 A
  • Technology: 3MI 0.15 um Power pHEMT
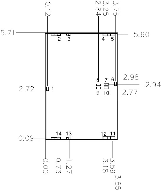
  • Chip dimensions: 3.86 x 5.71 x 0.05 mm
订购信息 Ordering Information
  • TGA4916
应用领域 APPLICATION
  • Ka Band VSAT
技术指标
频率(GHz) 功率(dBm) 增益(dB) NF/PAE +V IQ(mA)
29-31 38.5 21 - 6 3200
机械图样Mechanical Drawing
TGA4916 机械图样
应用技术支持与电子电路设计开发资源下载 版本信息 大小
TGA4916:S 参数    
TGA4916 数据资料DataSheet下载:PDF Rev.V2 2 页