TGP2103 8.5 - 11 GHz 6位移相器

The TriQuint TGP2103 is a 6-bit digital phase shifter MMIC design using TriQuint's proven 0.5 um MESFET process. The TGP2103 will support a variety of X band phased array applications including military radar. The 6-bit design utilizes a compact topology that achieves a 11.31 mm² die area and high performance. The TGP2103 provides a 6-bit digital phase shift function with a nominal 5 dB insertion loss and 2° RMS phase shift error over a bandwidth of 8.5 to 11 GHz. The TGP2103 requires a minimum of off-chip components and operates with a -5 V control voltage. Each device is RF tested on-wafer to ensure performance compliance. The device is available in chip form and is lead-free and RoHS compliant.

技术特性
  • Frequency range: 8.5 to 11 GHz
  • 5 dB nominal insertion loss
  • 2° RMS phase error @ 9.5 GHz
  • 0.2 dB RMS amplitude error @ 9.5 GHz
  • Negative control voltage
  • 0.5 um MESFET technology
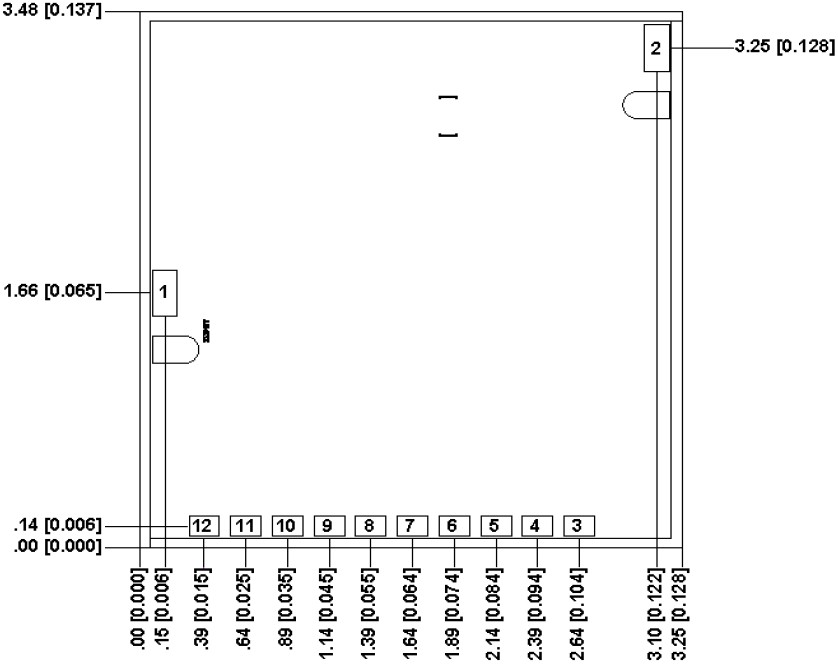
  • Chip dimensions: 3.25 x 3.48 x 0.15 mm (0.128 x 0.137 x 0.006 in)
应用领域 APPLICATION
  • Military Radar
  • Transmit / Receive
订购信息 Ordering Information
  • TGP2103
技术指标
频率(GHz) 插入损耗(dB) +V
8.5 - 11 5 -5
机械图样Mechanical Drawing
TGP2103 机械图样

 

应用技术支持与电子电路设计开发资源下载 版本信息 大小
TGP2103 数据资料DataSheet下载:PDF Rev.V2 2 页